Leonardo Armentano, arquitecto a cargo de la obra mencionada, compartió en FM Vos 94.5 algunos de los datos técnicos de este nuevo proyecto en la guardia del Schestakow que se puso en marcha de manera oficial este jueves 9 de junio.
«Con motivo de esta inauguración, en horas de la mañana se hizo una conferencia de la cual participó el senador y doctor Abel Freidemberg, junto con el director del nosocomio, doctor José Muñoz y la gerente asistencial, Virginia Bravo. Por otra parte, yo también estuve presente y he compartido algunos datos técnicos específicos», dijo el arquitecto al comienzo de la charla.
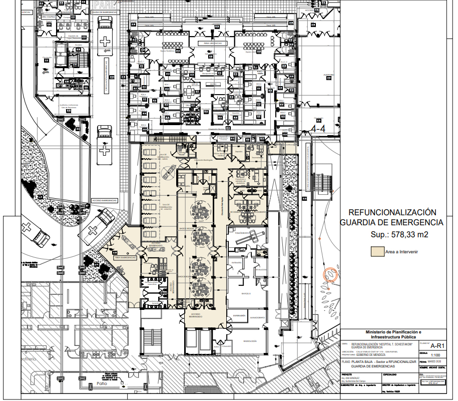
Después, comentó cuál es el sector del hospital que se verá beneficiado mediante la ejecución de la mencionada obra, con la que se buscará seguir mejorando el nosocomio. «Esto no es más que la continuación de lo que ha sido anunciado por Alfredo Cornejo allá por el año 2019, cuando se amplió el hospital. Ahora, en esta oportunidad, estamos refuncionalizando el sector de la Guardia, más precisamente la parte de emergencia y de observación. Son aproximadamente unos 580 metros cuadrados con un presupuesto de 150 millones de pesos, y la obra tendrá una duración de unos 180 días. La empresa mendocina a cargo es Corporación del Sur Sociedad Anónima», detalló Leonardo Armentano a nuestro medio.
Asimismo, explicó los beneficios que tendrá la sociedad a partir de esta importante ampliación que será llevada adelante. «Vamos a pasar de dos shock rooms a cuatro, y de cinco box de observación a siete, separando el sector de adultos con el destinado para pediatría”, afirmó.
Para finalizar, hizo hincapié en algunas modificaciones que tendrá el hospital mientras se llevan adelante estos trabajos de remodelación. “Además, quiero comentar que ahora el ingreso de salidas de ambulancias será de forma compartida por la misma entrada con los autos particulares. Esto será mientras duren estos 180 días de obras y la atención de las personas no se verá afectada. Siempre tratamos de mejorar al hospital, por eso más adelante continuaremos con otras remodelaciones. Pero ésta obra que ahora iniciamos es muy importante, tal cual lo planificamos después de pandemia de coronavirus con el ministro de Infraestructura, Mario Isgro», concluyó Armentano.







